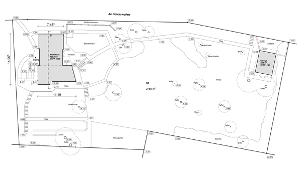
Ansichten, Grundrisse, Schnitt, Raumabwicklungen, 3-D Ansicht der "neuen alten" Küche, Garagenplan sowie Freiflächenplan zu Haus und Garten Paepke.
Weitere Pläne der Gesamtanlage finden sich auf den Seiten des Architekturmuseums der Technischen Universität Berlin:
Pläne des Architekturmuseums der TU Berlin
Darüber hinaus konnten aus dem Nachlass der Familie Paepke noch Originalpläne des Hauses sowie der Sichtschutz- und Rankenwand und der Garage übernommen werden.
Ferner sind sämtliche Baurechnungen, die Korrespondenz zwischen Bauherr, Architekt und ausführenden Betrieben sowie alte Bestelllisten der Baumschule im Original vorhanden, so dass die Geschichte der Immobilie nahezu lückenlos dokumentiert ist.
Pläne
Ansichten (bis 2011)
Bis 2011 waren noch die in den 1980er Jahren erneuerten Fenster verbaut, die Holzverschalung entsprach nicht dem ursprünglichen Bild.
Ansichten (ab 2012)
Wiederherstellung der ursprünglichen Farbigkeit der Fassade und Rekonstruktion der Fenster nach altem Vorbild im Rahmen der Sanierung von "Haus Paepke".
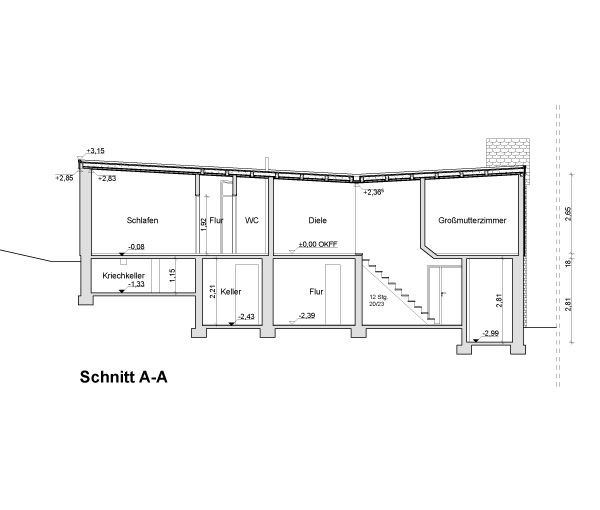
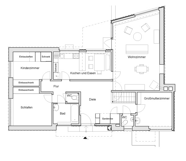
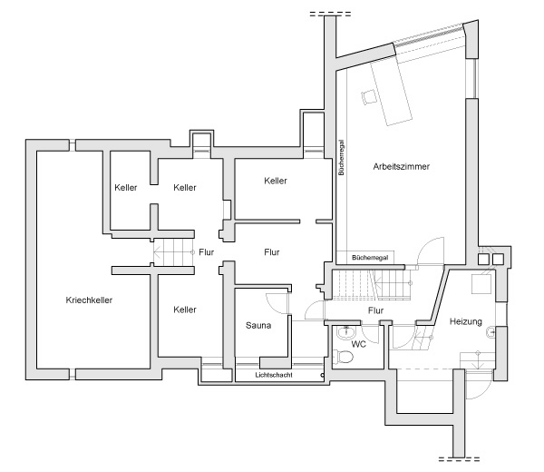
Grundrisse EG und KG, Schnitt, Garagenplan (bis 2011/12)
Neben der Wiederherstellung der Außenansichten nach historischem Vorbild werden seit September 2011 auch die Innenräume von "Haus Paepke" saniert. Die Arbeiten an der Garage sollten ursprünglich 2013 ausgeführt werden.
Farbkonzept Haus Paepke (ab 2012)
Vor Beginn der Sanierungsarbeiten wurden umfangreiche Fassungsuntersuchungen von einer Dipl.-Restauratorin des Landesamtes für Denkmalpflege Hessen durchgeführt, mit dem Ziel bei der denkmalgerechten Instandsetzung der Gebäude unter anderem auch das ursprüngliche Farbkonzept zu rekonstruieren.
3-D Ansicht der "neuen alten" Küche
Die von Prof. Mattern geplante Einbauküche soll im Zuge der Sanierung aufgearbeitet und behutsam modernisiert werden.
Freiflächenplan (bis 2012 / ab 2013)
Maren Brechmacher-Ihnens "Denkmalpflegerisches Zielkonzept für den Garten von Haus Paepke" bildet die Grundlage für die Wiederherstellung der ursprünglichen Gartenplanung Hermann Matterns, die ursprünglich in 2013 ausgeführt werden sollte.
Visualisierung des geplanten Gartensitzplatzes
Im Bereich des ehemaligen Nutzgartens soll ein Gartensitzplatz nebst kleinem Pavillon nach eigenem Entwurf realisiert werden - als eine Art „Besucherzentrum“, in dem zum Tag des offenen Denkmals und zu weiteren Terminen interessierten Gästen eine Dauerausstellung mit historischen Fotos, Plänen und dergleichen mehr zu "Haus und Garten Paepke" und zum Wirken und Schaffen Hermann Matterns präsentiert werden soll.























